

截面高度 H;截面寬度 B;腹板厚度 Tw;
翼緣厚度 Tf;交接圓弧半徑 Rw
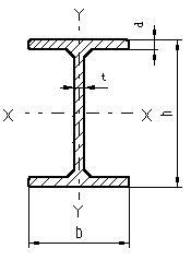
工字鋼也稱鋼梁,是截面為工字形的長條鋼材。其規格以腰高( h)*腿寬(b)*腰厚(d)的毫米數表示,如“工160*88*6”,即表示腰高為160毫米,腿寬為88毫米,腰厚為6毫米的工字鋼。工字鋼的規格也可用型號表示,型號表示腰高的厘米數,如工16#。腰高相同的工字鋼,如有幾種不同的腿寬和腰厚,需在型號右邊加a b c 予以區別,如32a# 32b# 32c#等。工字鋼分普通工字鋼和輕型工字鋼,熱軋普通工字鋼的規格為10-63#。經供需雙方協議供應的熱軋普通工字鋼規格為12-55#。工字鋼廣泛用于各種建筑結構、橋梁、車輛、支架、機械等。
上一條:已經沒有了
下一條:工字鋼